Loại nhà đất
Nhà mặt phố
Địa điểm
Nha Trang
Mức giá
Dưới 10 tỉ
Diện tích
70 - 100 m2
Loại nhà đất
Nhà mặt phố
Địa điểm
Nha Trang
Mức giá
Dưới 10 tỉ
Diện tích
70 - 100 m2

Bán nhà đẹp Vĩnh Ngọc – Nha Trang chỉ 1ty850tr

Cần bán Nhà mặt phố
95 lượt xem 2 năm trước

Địa chỉ: Đường Liên Hoa, Xã Vĩnh Ngọc, Nha Trang, Khánh Hòa

Bán nhà đẹp Vĩnh Ngọc – Nha Trang chỉ 1ty850tr

———————-

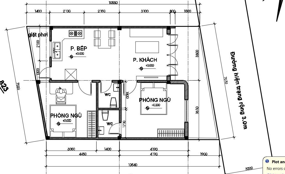
– Vị trí nằm trong hẻm ô tô 3m cách bờ kè sông Cái và đường chính Liên Hoa chỉ 120m

– Diện tích : 73m full thổ ngang 7m

– Hướng đông bắc

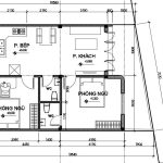
– Hiện trạng nhà cấp 4 còn mới gồm 2 phòng ngủ, 2 toilet , Khách, Bếp, sân trước để xe, sân sau giặt phơi giếng trời…

Để lại toàn bộ nội thất

– Pháp lý : sổ hồng ( có GPXD )

———————

– Giá : 1tỷ850tr

Call : 0964.252.879 Thời

Xem thêm

Thông tin khác: Bán nhà đẹp Vĩnh Ngọc - Nha Trang chỉ 1ty850tr

Mặt tiền 7m

Đường trước nhà 3m

Diện tích 73m2

Số tầng 1

Phòng ngủ 2

Phòng tắm 2

Loại hình BĐS Nhà mặt phố

Pháp lý Sổ đỏ/Sổ hồng

Tin đăng

Mã tin đăng 5347274

Loại tin đăng Tin thường

BĐS Khánh Hòa Thời

Đăng nhập cuối: 29-01-2024

Chưa xác thực SĐT Chưa xác thực email
Xem thêm 209 tin đăng