Loại nhà đất
Căn hộ, chung cư
Địa điểm
Hạ Long
Mức giá
Tất cả mức giá
Diện tích
Trên 1000m2
Loại nhà đất
Căn hộ, chung cư
Địa điểm
Hạ Long
Mức giá
Tất cả mức giá
Diện tích
Trên 1000m2

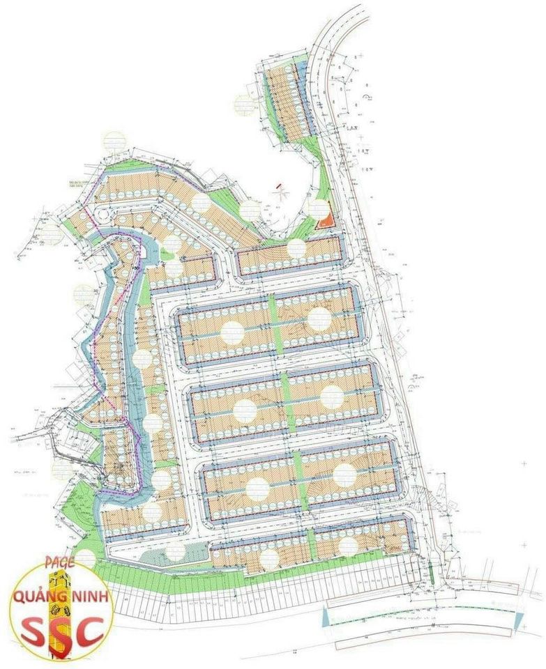
Dự án nhà ở xã hội Khu dân cư đồi Ngân hàng tại Trung tâm TP Hạ Long. Nhận thông tin cụ thể

Cần bán Căn hộ, chung cư
73 lượt xem 2 năm trước

Địa chỉ: Đường Đồi Ngân Hàng, Phường Hồng Hải, Hạ Long, Quảng Ninh

Dự án nhà ở xã hội Khu dân cư đồi Ngân hàng tại Trung tâm TP Hạ Long.

Nhận thông tin cụ thể : 0888 766 676

Dự án nhà ở xã hội Khu dân cư đồi Ngân hàng thuộc địa phần 2 phường Hồng Hải và Cao Thắng, TP Hạ Long, được xây dựng trên diện tích là gần 26.000m2.

Trong đó diện tích đất xây dựng công trình trên 7.400m2; đất cây xanh trên 5.000m2; đất hạ tầng kỹ thuật trên 13.300m2.

Chủ đầu tư dự án là Liên danh Công ty Cổ phần Tư vấn Đầu tư Tài chính Toàn Cầu – Công ty Cổ phần Đầu tư và Phát triển nhà số 6 Hà Nội.

Đầu tư xây dựng 3 tòa nhà chung cư, trong đó:

2 tòa cao 19 tầng nổi, 1 tầng lửng, 1 tầng kỹ thuật;

1 tòa cao 17 tầng, 1 tầng lửng, 1 tầng kỹ thuật , 1 tầng bán hầm;

Tổng diện tích sàn xây dựng khoảng trên 125.000m2;

Vốn đầu tư khoảng 1.361 tỷ đồng.

Dự án dự kiến sẽ hoàn thiện bàn giao đưa vào sử dụng trong Quý I/2026.

Liên hệ: 0888 766 676

Xem thêm

Thông tin khác: Dự án nhà ở xã hội Khu dân cư đồi Ngân hàng tại Trung tâm TP Hạ Long. Nhận thông tin cụ thể

Diện tích 26000m2

Loại hình BĐS Căn hộ, chung cư

Pháp lý Sổ đỏ/Sổ hồng

Nội thất

Full nội thất

Mục đích sử dụng

Nhà ở

Tin đăng

Mã tin đăng 4888483

Loại tin đăng Tin thường

Thành Đạt

Đăng nhập cuối: 25-11-2025

Đã xác thực SĐT Đã xác thực email
Xem thêm 1172 tin đăng