Loại nhà đất
Đất thổ cư - đất ở
Địa điểm
Phù Mỹ
Mức giá
Dưới 10 tỉ
Diện tích
150 - 200 m2
Loại nhà đất
Đất thổ cư - đất ở
Địa điểm
Phù Mỹ
Mức giá
Dưới 10 tỉ
Diện tích
150 - 200 m2

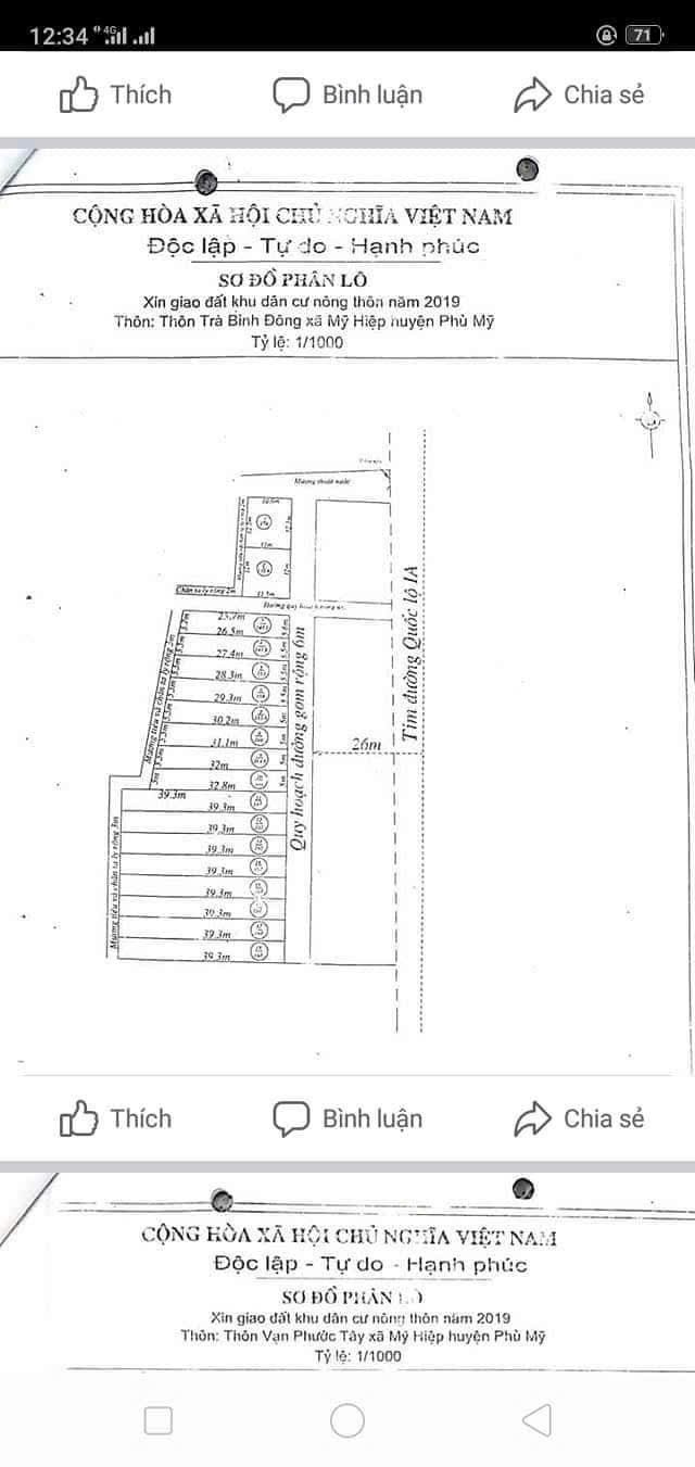
ĐẤT CHÍNH CHỦ – VỊ TRÍ ĐẸP Thôn Trà Bình Đông, Xã Mỹ Hiệp, Phù Mỹ – Bình Định

Cần bán Đất thổ cư - đất ở
16 lượt xem 3 tháng trước

Địa chỉ: Xã Mỹ Hiệp, Phù Mỹ, Bình Định

ĐẤT CHÍNH CHỦ – VỊ TRÍ ĐẸP Thôn Trà Bình Đông, Xã Mỹ Hiệp, Phù Mỹ – Bình Định
Nay: Thôn Trà Bình Đông, xã Phù Mỹ Nam, tỉnh Gia Lai


Diện tích: 197m2
Giá bán: 1,1 tỷ
Liên hệ SĐT Chính chủ: 0865353119


– Vị trí: mặt tiền quốc lộ 1A
– Tiện ích xung quanh đầy đủ như chợ, trường học, bệnh viện,….
– Khu vực dân cư đông đúc, an ninh đảm bảo
– Pháp lý đầy đủ, SỔ HỒNG RIÊNG, thủ tục sang tên nhanh chóng
GHIM VỊ TRÍ: https://maps.app.goo.gl/aJDPcjx2vimA9ifb7

Xem thêm

Thông tin khác: ĐẤT CHÍNH CHỦ - VỊ TRÍ ĐẸP Thôn Trà Bình Đông, Xã Mỹ Hiệp, Phù Mỹ - Bình Định

Đường trước nhà 5m

Diện tích 197m2

Loại hình BĐS Đất thổ cư - đất ở

Pháp lý Sổ đỏ/Sổ hồng

Mục đích sử dụng

Mặt bằng

Tin đăng

Mã tin đăng 7882664

Loại tin đăng Tin thường

Chủ Chính

Đăng nhập cuối: 06-02-2026

Chưa xác thực SĐT Chưa xác thực email
Xem thêm 2476 tin đăng