Thông tin chung cư C1 C2 Xuân Đỉnh
Chung cư C1 C2 Xuân Đỉnh là dự án nổi bật trong khu vực, sở hữu vị trí thuận tiện, hạ tầng hoàn thiện, dễ dàng di chuyển đến những khu vực xung quanh như tuyến đường Võ Chí Công, Nguyễn Văn Huyên kéo dài và khu Ngoại Giao Đoàn.
– Tên dự án: Chung cư C1 C2 Xuân Đỉnh
– Chủ đầu tư: Công ty CP Thi công Cơ giới Xây Lắp
– Cơ quan thẩm định: Sở Xây dựng Hà Nội
– Đơn vị tư vấn thiết kê: Công ty CP Tư vấn Thiết kế Xây Dựng Kinh Doanh Nhà
– Tổng diện tích xây dựng: 4214.6m2
– Mật độ xây dựng: 39.11%
– Quy mô: 450 căn hộ
– Dự kiến bàn giao: Quý IV/2017

Phối cảnh tổng thể chung cư C1 C2 Xuân Đỉnh
Hạ tầng – Quy hoạch
Chung cư C1 C2 Xuân Đỉnh tọa lạc ở vị trí đắc địa, nằm liền kề Khu đô thị Star Lake Hồ Tây và Khu đô thị Đoàn Ngoại Giao. Dự án thừa hưởng tất cả tiện ích của 2 đô thị nhộn nhịp bất nhất Thủ đô như các tiện ích khu dân sinh cũ, gần trường, chợ, bệnh viện, Metro,… Gần Trường Tiểu học Xuân Đỉnh, Trung học Cơ sở Xuân Đỉnh, Trung học Phổ thông Xuân Đỉnh… Tầng 1 của tòa nhà trung tâm thương mại, Spa, Gym và phòng sinh hoạt cộng đồng cho cư dân.

Các tiện ích tại dự án

Liên kết vùng tại dự án
Thiết kế – Mẫu nhà


Vị trí
Chung cư C1 C2 Xuân Đỉnh nằm ở số 323 Xuân Đỉnh, phường Xuân Đỉnh, Bắc Từ Liêm, Hà Nội. Từ dự án, cư dân có thể kết nối thuận lợi với những tỉnh ngoại thành qua cầu Thăng Long, cầu Nhật Tân và đến sân bay Nội Bài chỉ mất 10 phút.
– Phía Bắc giáp với đường lớn Xuân Đỉnh, hướng ra phía cầu Nhật Tân
– Phía Nam hướng ra dự án Đoàn Ngoại Giao
– Phía Tây hướng ra công viên Hòa Bình
– Phía Đông hướng ra Hồ Tây và nội khu

Vị trí chung cư C1 C2 Xuân Đỉnh
Hỗ trợ tài chính
Căn hộ C1 C2 Xuân Đỉnh có tiến độ thanh toán linh hoạt, chia thành 6 đợt:
– Đợt 1: Thanh toán 25% ký hợp đồng mua bán
– Đợt 2: Thanh toán 15% tổng giá trị căn hộ khi chung cư đổ sàn tầng 5
– Đợt 3: Thanh toán 15% tổng giá trị căn hộ khi chung cư đổ sàn tầng 10
– Đợt 4: Thanh toán 15% tổng giá trị căn hộ khi cất nóc
– Đợt 5: Thanh toán 25% tổng giá trị căn hộ và 2% KPBT khi nhận bàn giao căn hộ
– Đợt 6: Thanh toán 5% khi nhận giấy chứng nhận quyền sở hữu
Tổng quan khác
Tọa lạc giữa trung tâm Quận Bắc Từ Liêm, chung cư C1 C2 được đánh giá là 1 trong những dự án trọng điểm, sáng giá nhất của khu vực Xuân Đỉnh. Mang trong mình sứ mạng giải quyết nhu cầu cấp thiết về nhà ở trong năm 2016, dự án được chính quyền thành phố Hà Nội quan tâm đặc biệt.
Dự án chung cư C1 C2 Xuân Đỉnh được chăm chút từ cơ sở hạ tầng, tiện ích nội khu, ngoại khu đa dạng, vị trí thuận lợi để dễ dàng kết nối các tuyến đường huyết mạch của thành phố như: đường Võ Chí Công, đường Phạm Văn Đồng, đường Nguyễn Văn Huyên, đặc biệt là khu vực Đoàn Ngoại Giao, Ciputra… Một môi trường sống lý tưởng để an cư lập nghiệp.
TỔNG QUAN DỰ ÁN
Tên dự án: Chung cư C1 C2 Xuân Đỉnh
Chủ đầu tư dự án: Công Ty Cổ Phần Thi Công Cơ Giới Xây Lắp
Đơn vị tư vấn thiết kế dự án: Công Ty Cổ Phần Tư Vấn Thiết Kế Xây Dựng và Kinh Doanh Nhà
Cơ quan thẩm định dự án: Sở Xây dựng Hà Nội
Tổng diện tích xây dựng dự án: 4214.6 m2
Quy mô căn hộ tại dự án: 450 căn hộ
Mật độ xây dựng tại dự án: 39.11%
Thời gian bàn giao dự kiến dự án vào khoảng quý IV/2017
Hiện tại, dự kiến giá bán chung cư C1 C2 Xuân Đỉnh vào khoảng 23 triệu/m2.

VỊ TRÍ DỰ ÁN
Tọa lạc tại mặt đường Xuân Đỉnh, số 323, Quận Bắc Từ Liêm, thành phố Hà Nội. Dự án được hưởng lợi từ hệ thống giao thông và cơ sở hạ tầng phát triển đồng bộ.
Từ dự án, chủ nhân dễ dàng kết nối tới trung tâm thành phố Hà Nội qua 2 trục đường vành đai là vành đai 2 và vành đai 3 (hay còn gọi là tuyến đường Võ Chí Công, đường Phạm Văn Đồng, Phạm Hùng).
Đặc biệt, dự án có vị trí chiến lược để di chuyển sang bên kia sông Hồng qua Cầu Nhật Tân. Từ đó, chủ nhân có thể dễ dàng tới sân bay Nội Bài để đi công tác hay đi du lịch dã ngoại đến Tam Đảo, Thái Nguyên…

THIẾT KẾ – QUY HOẠCH DỰ ÁN
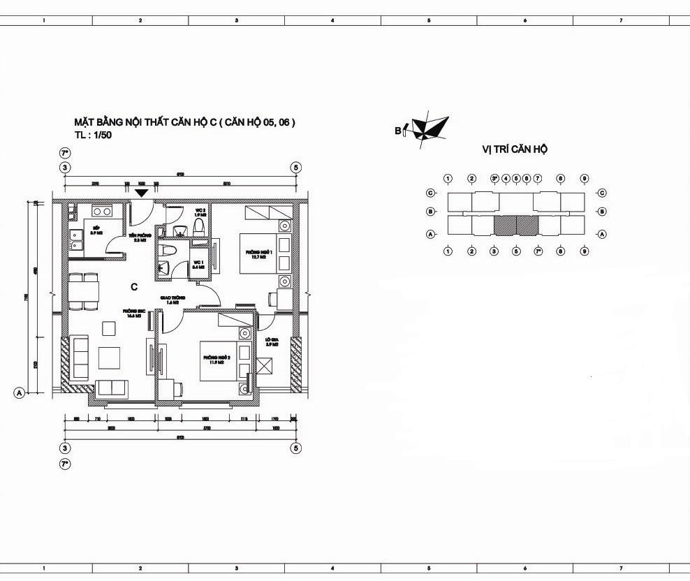
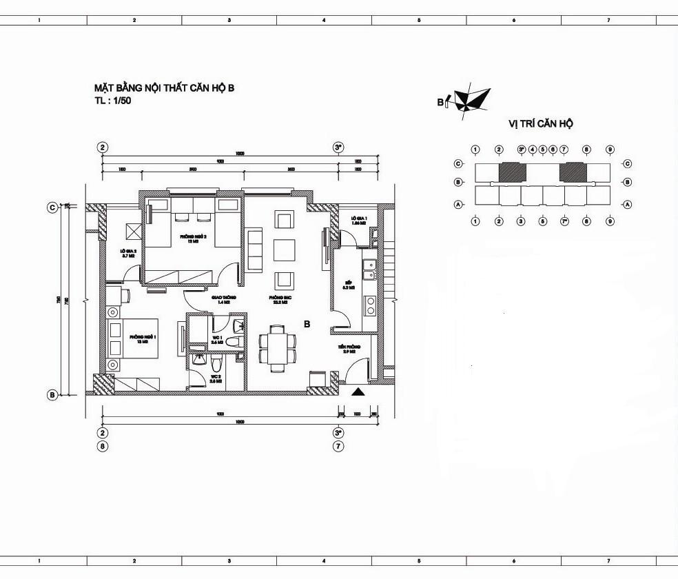
Với thiết kế theo hướng 2 tòa tháp cao ngút trời, dự án chung cư C1 C2 Xuân Đỉnh nổi bật giữa trung tâm Quận Bắc Từ Liêm, với 17 tầng của tòa C1 và 15 tầng của tòa C2. Dự án có 2 loại căn hộ là loại căn 2 phòng ngủ và 3 phòng ngủ, với diện tích đa dạng, chạy từ 65m2 đến 100m2 (thông thủy), được kết hợp với khối đế và tầng hầm riêng để chủ nhân để xe an toàn.
Mỗi một căn hộ tại dự án đều được thiết kế với 2 ban công, bao gồm: 1 ban công phơi đồ và 1 ban công để ngắm cảnh. Mỗi căn hộ với ban công rộng được thiết kế nhằm tối ưu hóa không gian sống, đa dụng cho gia chủ, đồng thời mỗi phòng đều có mặt thoáng để đón nắng, đón gió tự nhiên. Đặc biệt, tại dự án chung cư C1 C2 Xuân Đỉnh còn được thiết kế phòng khách, phòng ngủ riêng, theo phong cách hiện đại, nhằm tạo ra sự thoáng mát và rộng rãi nhất cho chủ nhân.

*THÔNG TIN CỤ THỂ TÒA C1 XUÂN ĐỈNH:
Số tầng: 17
Diện tích xây dựng tòa C1: 1.250m2
Tổng diện tích sàn xây dựng tòa C1: 20.450m2
Tổng chiều cao tòa nhà: 63m
Chiều cao tầng đế: 4.2m
Chiều cao tầng hầm: 3.9m (1 tầng hầm)
*THÔNG TIN CỤ THỂ TÒA C2 XUÂN ĐỈNH:
Số tầng: 15
Diện tích xây dựng tòa C2: 865m2
Tổng diện tích sàn xây dựng tòa C2: 12.975m2
Tổng chiều cao tòa nhà: 56.6m
Chiều cao tầng đế: 4.2m
Chiều cao tầng hầm: 3.6m (1 tầng hầm)
TIỆN ÍCH DỰ ÁN
Dự án chung cư C1 C2 Xuân Đỉnh nằm liền kề khu đô thị Tây Hồ Tây, khu đô thị Đoàn Ngoại Giao… nên được thừa hưởng toàn bộ tiện ích của những khu đô thị hiện đại, sầm uất bậc nhất Hà Nội.
Các tiện ích công cộng tại dự án:
Tầng 1 là chuỗi siêu thị, trung tâm thương mại, hệ thống phòng tập gym, spa, ngân hàng và phòng sinh hoạt cộng đồng để phục vụ những nhu cầu thiết yếu của chủ nhân.
Khu nhà ở chung cư C1 C2 Xuân Đỉnh có đầy đủ các tiện ích an sinh: nằm rất gần chợ, trường học, bệnh viện…